Description
Furnished 1-bedroom apartment (72m2) with spacious balcony located on the 7th floor (top floor) of apartment complex 'The Gustav' in Rosy Wertheimstraat! (South Axis).
Possibly with parking space in the parking garage.
Watch the video and lay out of the apartment on our website kkamsterdam.dot.com
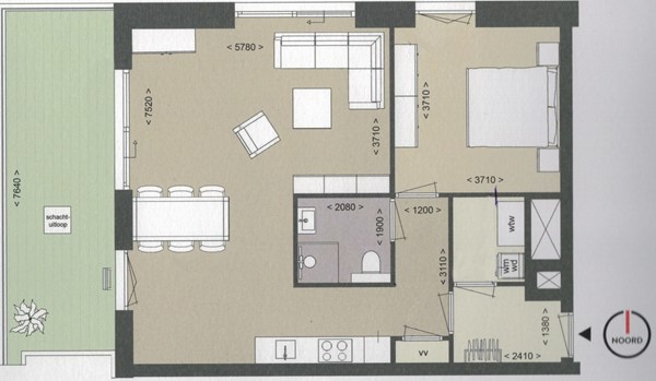
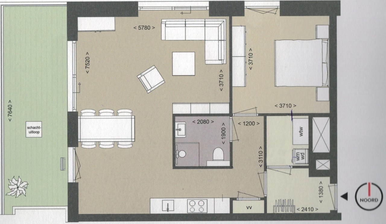
Layout apartment:
Entrance / Spacious hall with videophone. Spacious storage room with washing machine / dryer combination.
Very spacious and bright living room with windows all around and two sliding doors to the balcony.
Open plan kitchen. The kitchen unit has an induction hob with 4 cooking zones, dishwasher, Quooker tap, combination oven/microwave, refrigerator, freezer drawers and plenty of cupboard space.
The 'Master Bedroom' is 14m2 and has a large walk-in closet. There is a 1.60 x 2.00 bed.
The bathroom has a walk-in shower, bathroom furniture with sink, toilet and a towel radiator.
The apartment has a high ceiling of 2.90. There is underfloor heating, which can be used for cooling in the warmer summer months.
The apartment is equipped with ultra-fast data cabling.
The balcony is 20 m2 and oriented to the South. There are 2 large chairs on the balcony.
Ground floor:
Common representative entrance with mailboxes for all residents.
ON -1:
Is.. the parking garage with its private parking space . The space can be rented for € 350.00 p.m.
Is ..a private storage room with electricity connection.
Is ..the communal bicycle space.
Location:
The Zuidas is the financial district of the city. The streetscape consists of high buildings on the one hand, offices on the other, apartments. At street level there are restaurants, shops, gyms and a supermarket.
Building 'The Gustav' is located in a side street of the Gustav Mahlerlaan, opposite the ABN-AMRO office.
The Beatrix Park and the Amstel Park are within walking distance.
Accessibility:
South/WTC station is a 5-minute walk from the apartment. Station Zuid/WTC is a Train and Metro station. Schiphol can be reached in 6 minutes by train and with the North-South line (52) you can reach various locations in the city center in no time.
Tram line 5 takes you to Amstelveen and Leidseplein.
A few streets away from the A10 ring road.
Extra information:
- Available immediately for a minimum of 12 and a maximum of 24 months.
- Rental price is Excl. Heating-E-W-T. V- Internet and City Taxes.
- No brokerage fees and/or contract fees.
- Deposit equal to 2 months’ rent.
- No pets allowed.